Happy Haven

Custom Homes

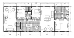
planE

Bookmark the permalink.

© 2024 Lakeshore Communities. All rights reserved.